€ 310.000
Vendesi trilocale ristrutturato
Rif: IMMO-125691045
ROMA | ROMA | - zona Villa Gordiani
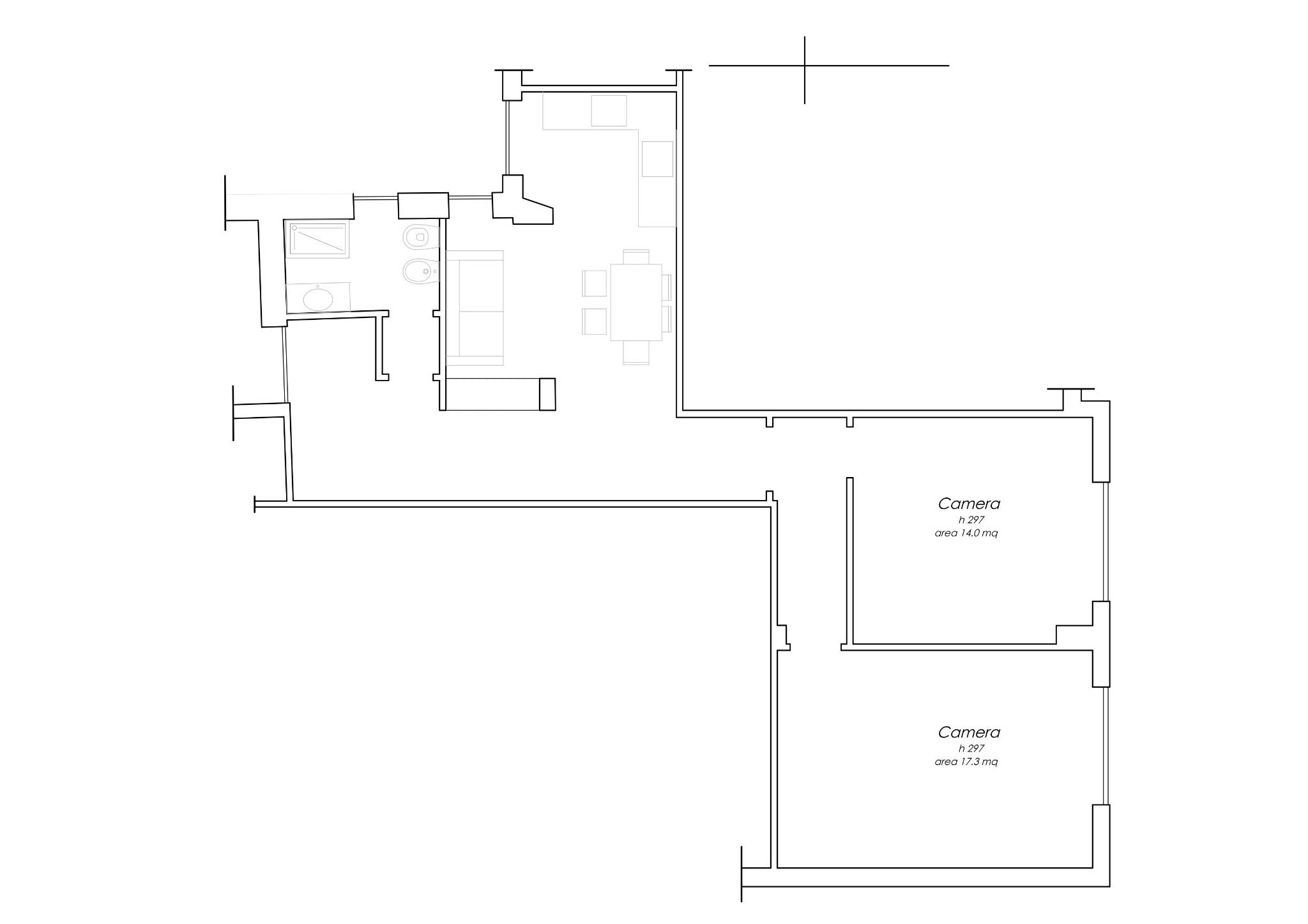
Zona Villa Gordiani - Piazza Ronchi, Vendesi appartamento della superficie catastale di 83 mq. Composizione: Ingresso, Corridoio, Soggiornino all'americana con angolo cottura, 2 Camere da letto matrimoniali e Bagno. - NO BALCONE - L'unità immobiliare è collocata al piano secondo con ascensore, è stata recentemente ristrutturata e dispone della relativa certificazione. E' presente Impianto termico centralizzato, Climatizzazione freddo/caldo, Porta blindata, Infissi in Pvc, Piano cottura ad induzione, Scaldabagno elettrico Ariston 100 litri wifi con doppia camera. La collocazione dell'immobile rappresenta un ottimo investimento nel caso di utilizzo come "attività ricettiva" oppure affitto a "studenti universitari". Libero al rogito !!!
Consistenze
| Descrizione | Superficie | Sup. comm. |
|---|---|---|
| Principali | ||
| Immobile - 2° piano | 83 Mq | 83 Mqc |
| Totale | 83 Mqc | |
Foto
Richiedi maggiori informazioni
Maggiori informazioni
3336555929
3336555929
Contattaci
Contratto Vendita
Rif IMMO-125691045
Prezzo € 310.000
Provincia Roma
Comune Roma
Zona - Zona Villa Gordiani
Indirizzo Piazza Ronchi 16">
Vani 3
Camere 2
Bagni 1
Classe energetica
G (DL 192/2005)
EPI 175 kwh/m2 anno
Piano 2 / 6
Riscaldamento centralizzato
Condizioni ottime condizioni
Spese condominiali € 80
Arredato si
Ascensore si
Cucina angolo cottura
Affitti Point Immobiliare
Via Attilio Hortis, 54 00177 ROMA (RM)
C.F.: 02088030743
P.IVA: 02088030743
3336555929






